
J8-DG・J8-CFGとは?
J8-DGは電磁バルブ式、J8-CFGはフラッシュバルブ式で、水を貯めるタンクがないため、狭い場所にも設置できる和式の簡易水洗トイレです。この機種はどちらも「バランス式開閉弁タイプ」になります。
主な特長
- ・タンクがなく、狭いトイレに最適なサイズです。洗浄ガンの給水まわりもすっきりしており使いやすくなっています。
- ・バランス式開閉弁タイプになります。(水溜機構ではありません)
- ・電磁バルブは乾電池で作動するため、電源は不要です。また、左右取付、左右給水可能です。
- ・洗浄時は、設定した一定の水量で洗浄できます!(任意で水量を調整可能)
※フラッパーは70g前後の重さで開きます。
※排気扇は風量70㎥/h以下のもの(当社排気扇)をご使用ください。
※電磁バルブは水がかかる場所には設置しないでください。故障のおそれがあります。

色
パステルアイボリー
(PI)
(PI)
ニューピンク
(P2)
(P2)
※P2は無くなり次第廃番となります。
仕様
| 材質 | 便器本体:衛生陶器 |
|---|---|
| 梱包重量 | 22kg |
| 洗浄水量 | 電磁バルブ:約300㏄、フラッシュバルブ:約300cc |
電磁バルブ式 J8-DG
電磁バルブの特長
- ・軽くボタンを押すだけ
- ・ボタン操作しやすい場所に電磁バルブを壁付け
- ・トイレの止水栓からフレキ管で接続
- ・ケースが薄いので出っ張りが少なくすっきり
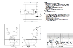
寸法図

※図はJ8-DG
付属品

■洗浄ガン(U字ノズル付)

■ペーパーホルダー
※電磁バルブ用 単3アルカリ乾電池×4本付
※アングル止水栓付
※掲載の商品は予告なく仕様・価格を変更する場合があります。
※モニターの都合上、実際の色とは若干異なる場合があります。
フラッシュバルブ式 J8-CFG(洗浄ガン付)
フラッシュバルブの特長
- ・電磁バルブのような乾電池の交換がない
- ・構造が簡単なので故障が少ない
付属品
■洗浄ガン(U字ノズル・ストレートロングノズル付)
■ペーパーホルダー
※掲載の商品は予告なく仕様・価格を変更する場合があります。
※モニターの都合上、実際の色とは若干異なる場合があります。
価格表
| 品番 | 仕様 | 価格(税抜) | |
|---|---|---|---|
| J8 洗浄ガン付き |
J8-DG | バランス式開閉弁、電磁バルブ式 | 134,100円 |
| J8-CFG | バランス式開閉弁、フラッシュバルブ式 | 126,800円 | |
- ※掲載の商品は予告なく仕様・価格を変更する場合があります。
- ※表示の価格には消費税は含まれておりません。



