
どこでも水洗便器【受注生産品】とは?
洗浄水量5ℓの水洗便器と圧送ポンプのセットもご用意しました。
ポンプを見直し、お求めやすい価格でリニューアルしました。

※写真はイメージです。
※VP25用塩ビボールバルブは同梱です。ボールバルブはメンテナンスのために必ず取付けてください。
※ロータンク・便器は(株)LIXIL製です。
※圧送ポンプはSFA製です。
※どこでもトイレ5ℓとは互換性がありません。
① 節水「5ℓ水洗便器」
洗浄水量5ℓの水洗トイレです。壁排水タイプのみになります。
② 圧送ポンプ
回転刃で汚物やトイレットペーパーを粉砕しながら圧送するポンプです。
※圧送ポンプは簡易水洗トイレと接続して使用することはできません。
カラーバリエーション
(PUW)
(PI)
(P2)
機能
横引き最大100m! 他にはない圧倒的な圧送距離を実現
上方・横引き圧送距離
| H | L |
|---|---|
| 5mの時 | 最大20m |
| 4mの時 | 最大40m |
| 3mの時 | 最大60m |
| 2mの時 | 最大80m |
| 1mの時 | 最大100m |
【例】圧送ポンプから5m上げ、そこから横引きする場合最大20mまで

排水配管VP25(VP20)の曲りには90°エルボは使用できません。45°エルボを2個使用して曲げてください。
※曲り1箇所につき0.5m圧送距離が短くなります。

※浄化槽・下水道接続のときは、汚水マスに穴をあけて入れ込んでください。
※排水配管はVP25またはVP20のみ。小さいと詰まりの原因になり、大きいと圧送能力がなくなります。
※排水配管は途中で異径せず、最後まで同じ径のパイプや継手を使用してください。異径すると圧送能力の低下や詰まりの原因になります。
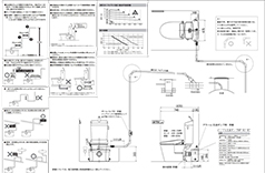
配管図
■ 壁排水(床上排水)
DKA-LZ03PM

価格表
※上記価格はトイレと圧送ポンプのセットです。
※圧送ポンプ単品でも販売しています。
※圧送ポンプは簡易水洗トイレと接続して使用することはできません。
※一般家庭用以外でのご使用の場合、メーカー保証に制限があります。詳細は保証書をご確認ください。
※掲載の商品は予告なく仕様・価格を変更する場合があります。
※表示の価格には消費税は含まれておりません。
※モニターの都合上、実際の色とは若干異なる場合があります。
トイレ用圧送ポンプ
最大水平圧送距離が約100メートルもあり、配管場所に限りがあったり距離が長かったりする際の設置に強い! トイレなどの排水が流れ込むと水圧ポンプ内の水位が上昇し、モーターが起動します。回転刃で汚物やトイレットペーパーを粉砕しながら圧送するポンプです。
施工例

※イラストはイメージです。

